Реализация объекта недвижимости приостановлена

Информация об помещении

1
Этаж

Состояние и оснащение

Количество этажей
9
Развернуть

Помещение свободного назначения в Ульяновская область, Ульяновск ...

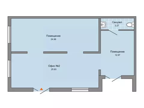
ОписаниеБЕЗ КОМИССИИ ДЛЯ ПОКУПАТЕЛЯ Номер объекта в базе 19449Площадь: 81 кв.мЭтаж: 1 Этажность: 9Все коммуникации проведеныДоступ в помещение:24/7Высота потолков: 3мОтдельный вход с улицыСанузел: СовмещённыйНазначение: Без профиля, любое коммерческое использованиеПримечание: Окна с видом на улицуПродажа:DAEVROPA с радостью поможет вам найти лучшее решение, соответствующее вашим требованиям и финансовым возможностям. Звоните или пишите — мы всегда на связи

Читать полностью

    Реализация объекта недвижимости приостановлена

    Не нашли подходящего объявления?

    Оставьте заявку, и наши риэлторы подберут псн в районе Ульяновска

    (0)