 
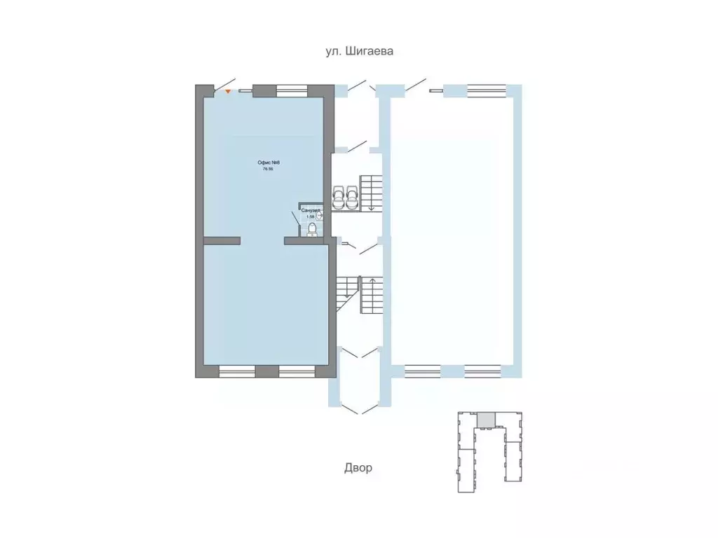
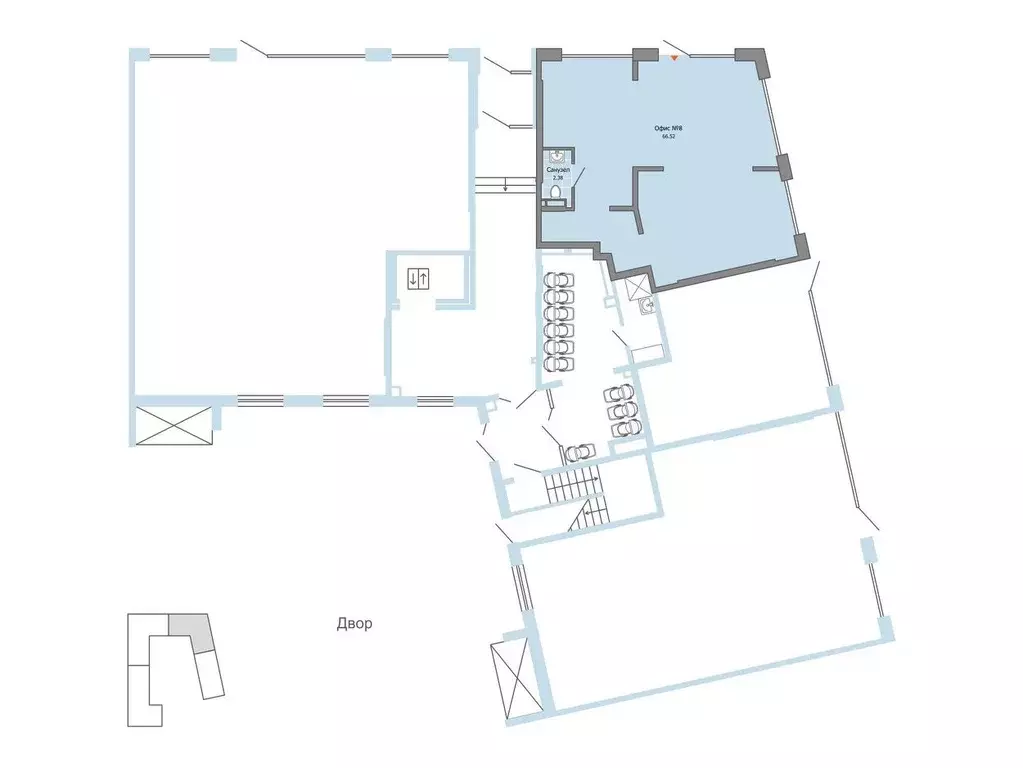
										Продается коммерческое помещение свободного назначения напрямую от федерального застройщика Желeзнo . Площадь помещения 69.00 м2. Высота потолков 2.70 м. Помещение находится на 1 этаже дома 2 ЖК Город новаторов .Запишитесь на просмотр помещения и экскурсию по ЖКПомещение продается в базовой отделке Объект коммерческой недвижимости продаётся в самом масштабном проекте Железно в Ульяновске — Город новаторов . Это не просто жилой комплекс, а полноценный самодостаточный город, созданный по авторской концепции на территории 67 гектаров, с инфраструктурой и ярким, продуманным пространством для жизни и работы. Помещение отлично подойдет для магазина, кафе, студии, офиса, сервиса или центра услуг. Это место, где ваш проект станет частью амбициозной и яркой среды, наполненной движением, новыми идеями и возможностями. Город новаторов — здесь создаются новые сценарии для жизни и бизнеса:• Современная архитектура и просторная планировка территории• Уникальные общественные пространства, насыщенные природой и функциональностью• Озелененные дворы, набережная для прогулок, семейные зоны отдыха• Школа, детские сады, спорт, здоровье и досуг — всё рядом Город новаторов — здесь живут и работают те, кто смотрит вперёд. Железно — федеральный девелопер со смыслом, создающий умные мини-города с развитой инфраструктурой. За 14 лет компания реализовала 21 проект вегионах, формируя комфортную среду для десятков тысяч семей. Проекты Железно сочетают функциональность и эмоции, формируя среду будущего. Застройщик — 6-кратный победитель премии Urban и входит в ТОП-5 по качеству жилья. С 2016 года ежегодно подтверждает статус Надёжный застройщик России .
 
								 
											
                                                                         
											
                                                                         
											
                                                                         
											
                                                                         
											
                                                                        Оставьте заявку, и наши риэлторы подберут псн в районе Ульяновска
