22 000 000 Р 270 900 $ или 234 500

Информация о помещении и здании

1
Этаж
2
Этажность
Развернуть
Агент
+7 (986) 735-50-51
Начать чат с агентом

Офис в Ульяновская область, Ульяновск просп. Созидателей, 36А (188 м)

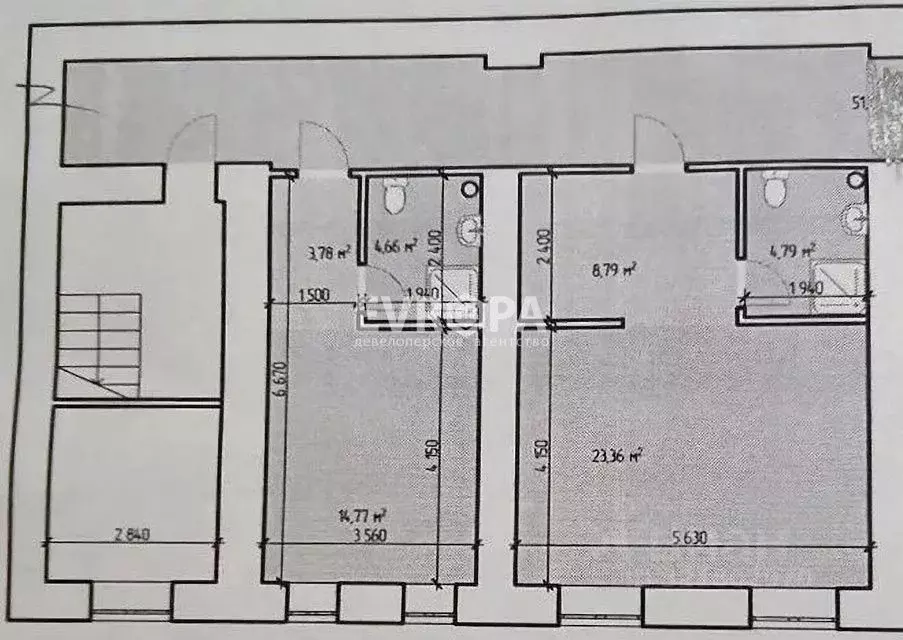
ОписаниеОфис Помещение Склад 183 мБЕЗ КОМИССИИ ДЛЯ ПОКУПАТЕЛЯ Номер объекта в базе 21450Площадь: 188 кв.м Первый этаж 153,8 кв. м Второй этаж 35 кв мЭтаж: 1 и 2Этажность: 2 Все коммуникации проведеныСостояние: в эксплуатацииДоступ в помещение: 24/7Электроснабжение: 15 кВтВысота потолков: 3 мКол-во входов: 2 ОтдельныйСанузел: СовмещённыйНазначение: Без профиля, любое коммерческое использованиеПримечание: Продается коммерческое помещение площадью 188,83 кв. м в отдельном здании (бывший детский сад). Помещение расположено на двух этажах.На первом этаже (153,8 кв. м) находятся два торговых зала по 50 кв. м каждый, склад, кухня, кабинет, подсобное помещение, санузел и душевая. Есть два входа.Второй этаж (35 кв. м) ранее использовался как офис. Он состоит из двух комнат, санузла и коридора. Вход отдельный.Помещения охраняются, имеют центральное отопление, интернет и два стационарных телефонных номера. Территория здания огорожена, есть три въезда и собственная парковка на 15 автомобилей. Также имеется металлический контейнер весом 20 тонн.Помещение продается вместе с торговым оборудованием, стеллажами, холодильником, СВЧ-печью и мебелью. Площади выделены в натуре из долевой собственности. Земельный участок также в собственности.Продажа: .DAEVROPA с радостью поможет вам найти лучшее решение, соответствующее вашим требованиям и финансовым возможностям. Звоните или пишите — мы всегда на связи

Читать полностью
    Позвонить Написать
    22 000 000 Р270 900 $ или 234 500
    Агент
    +7 (986) 735-50-51
    Начать чат с агентом
    Похожие предложения
    Офис в Ульяновская область, Ульяновск ул. Бебеля, 30А (253 м) - Фото 1
    Офис в Ульяновская область, Ульяновск ул. Бебеля, 30А (253 м) - Фото 2
    цокольный этаж, всего 5 этажей

    ОписаниеОфис Помещение 253,4 мБЕЗ КОМИССИИ ДЛЯ ПОКУПАТЕЛЯ Номер объекта в базе 21369Площадь: 253 кв.мЭтаж: высокий цоколь.Этажность: 5Все коммуникации проведеныСостояние: в эксплуатацииДоступ в помещение: 24/7Электроснабжение: 20 кВтВысота потолков:...
    • -1/5 эт.
    21 250 000 Р
    Агент
    +7 (986) Показать номер
    Посмотреть контакты
    Офис в Ульяновская область, Ульяновск ул. Федерации, 25 (256 м) - Фото 1
    Офис в Ульяновская область, Ульяновск ул. Федерации, 25 (256 м) - Фото 2
    1-й этаж, всего 3 этажа

    ОписаниеОфис Помещение Здание 256 мБЕЗ КОМИССИИ ДЛЯ ПОКУПАТЕЛЯ Номер объекта в базе 18086Площадь: 256 кв.мЭтажность: 3Все коммуникации проведеныСостояние: в эксплуатацииДоступ в помещение: 24/7Электроснабжение: 30 кВтВысота потолков: 3 мКол-во входов:...
    • 1/3 эт.
    23 000 000 Р
    Агент
    +7 (986) Показать номер
    Посмотреть контакты
    Офис (188 м) - Фото 1
    Офис (188 м) - Фото 2
    1-й этаж, всего 2 этажа

    ОписаниеОфис Помещение Склад 183мБЕЗ КОМИССИИ ДЛЯ ПОКУПАТЕЛЯ Номер объекта в базе 21450Площадь: 188 кв.м Первый этаж 153,8 кв. м Второй этаж 35 кв мЭтаж: 1 и 2Этажность: 2 Все коммуникации проведеныСостояние: в эксплуатацииДоступ в помещение: 24/7Электроснабжение:...
    • 1/2 эт.
    22 000 000 Р
    Агент
    +7 (903) Показать номер
    Посмотреть контакты
    Офис в Приморский край, Владивосток ул. Шепеткова, 8 (145 м) - Фото 1
    Офис в Приморский край, Владивосток ул. Шепеткова, 8 (145 м) - Фото 2
    1-й этаж, всего 2 этажа

    Арт.Продается коммерческое помещение в жилом доме с отдельным входом на первой линии от дороги с высоким пешеходным и автомобильным трафиком.Идеально подходит для реализации любых бизнес-идей или организации арендного бизнеса Характеристики объекта:-...
    • 1/2 эт.
    23 000 000 Р
    Агент
    +7 (914) Показать номер
    Посмотреть контакты
    Офис в Самарская область, Самара Московская ул., 6 (285 м) - Фото 1
    Офис в Самарская область, Самара Московская ул., 6 (285 м) - Фото 2
    4-й этаж, всего 4 этажа

    Арт.Продажа офисного помещения по адресу: г. Самара, Ленинский район, ул. Московская, 6. Ближайшее пересечение Московское шоссе.Общая площадь: 284,6 кв.м.Центр города.Этаж/этажность : 4/4.Кабинетная система.Кондиционеры.Пожарная и охранная сигнализация.Парковка...
    • 4/4 эт.
    22 768 000 Р
    Агент
    +7 (917) Показать номер
    Посмотреть контакты

    Не нашли подходящего объявления?

    Оставьте заявку, и наши риэлторы подберут офис в районе Ульяновска

    (0)