4 980 000 Р 63 070 $ или 54 740

Информация о квартире

60 м2
Площадь
47 м2
Жилая
9 м2
Кухня
3
Комнаты
3
Этаж
3
Этажность
Развернуть
Агент
+7 (917) 050-89-76
Начать чат с агентом

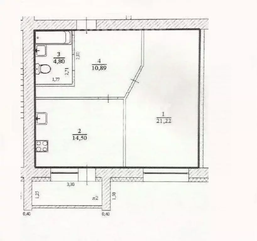
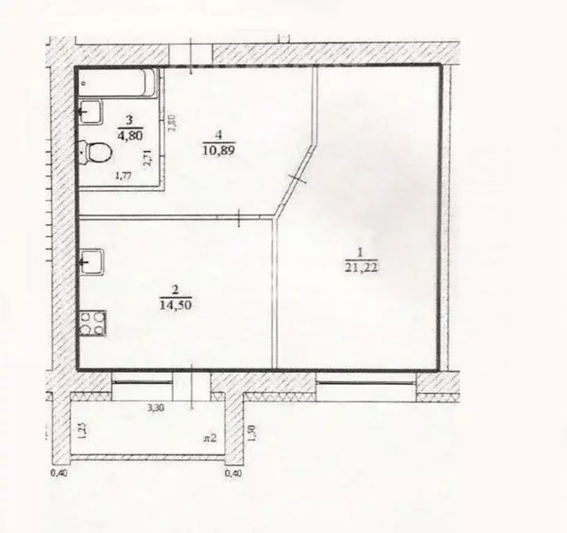
3-комнатная квартира: Ульяновск, проспект Нариманова, 5 (60.5 м)

Внимание Квартира площадью 60.5 м расположена в кирпичном доме на проспекте Нариманова, 5 в Ленинском районе. Объект предлагает рациональную трехкомнатную планировку с изолированными комнатами, что обеспечивает комфортное проживание для семьи. Просторная кухня и панорамное окно в одной из комнат создают ощущение простора и наполняют пространство естественным светом. Состояние квартиры поддерживается на хорошем уровне благодаря выполненному косметическому ремонту, а также замене всех ключевых инженерных систем электропроводки, труб и радиаторов отопления. Дополнительным преимуществом является наличие полезного подсобного помещения в подвале здания. Жилой комплекс окружен развитой инфраструктурой в шаговой доступности находятся магазины, аптеки и поликлиника. Благоустроенный двор включает детскую игровую зону и организованную парковку для автомобилей. Отличная транспортная доступность обеспечивает быструю связь с другими районами города. Это надежное и практичное жилье для тех, кто ценит удобство, стабильность и выгодное расположение. Код пользователя: 184055Номер в базе:

Читать полностью

    Для того, чтобы купить трехкомнатную квартиру по адресу: Ульяновск, Нариманова пр-кт., 5, позвоните по телефону +7 (917) 050-89-76. Торопитесь! Объявление №30091750079 о продаже трехкомнатной квартиры опубликовано 12 ноября 2025.

    Позвонить Написать
    4 980 000 Р63 070 $ или 54 740
    Агент
    +7 (917) 050-89-76
    Начать чат с агентом
    Похожие предложения
    3-к кв. Ульяновская область, Ульяновск ул. Минаева, 16 (59.0 м) - Фото 1
    3-к кв. Ульяновская область, Ульяновск ул. Минаева, 16 (59.0 м) - Фото 2
    3-комнатная квартира, общая площадь 59м², жилая 34м², кухня 6м²

    Арт.ПРОДАЕТСЯ УНИКАЛЬНАЯ 3-Х КОМНАТНАЯ КВАРТИРА Расположение: Центр города, идеальный выбор для тех, кто ценит комфорт и удобство Этаж: 5-й этаж пятиэтажного дома с великолепным панорамным видом из окон Инфраструктура: Все необходимое рядом — магазины,...
    • 59 м²
    • 3-ком
    • 5/5 эт.
    • кирпичный
    4 990 000 Р
    Агент
    +7 (917) Показать номер
    Посмотреть контакты
    1-к кв. Ульяновская область, Ульяновск ул. Киндяковых, 34 (50.0 м) - Фото 1
    1-к кв. Ульяновская область, Ульяновск ул. Киндяковых, 34 (50.0 м) - Фото 2
    1-комнатная квартира, общая площадь 50м², жилая 25м², кухня 10м²

    Арт.КВАРТИРА С ВИДОМ НА ВОЛГУ В КЛУБНОМ ДОМЕ. ЭТУ КВАРТИРУ МОЖНО КУПИТЬ ПО СТАВКЕ 13,75 С окна открывается красивый вид на Волгу. Квартира с автономным отоплением, а значит экономия на платежах. Квартира с ремонтом. Полностью готова для проживания вариант...
    • 50 м²
    • 1-ком
    • 3/5 эт.
    • кирпичный
    4 900 000 Р
    Агент
    +7 (917) Показать номер
    Посмотреть контакты
    3-комнатная квартира: Ульяновск, проспект Врача Сурова, 33 (66.3 м) - Фото 1
    3-комнатная квартира: Ульяновск, проспект Врача Сурова, 33 (66.3 м) - Фото 2
    3-комнатная квартира, общая площадь 66м², жилая 55м², кухня 6м²

    Просторная трехкомнатная квартира площадью 66.3 м расположена на седьмом этаже десятиэтажного дома в микрорайоне Новый Город по проспекту Врача Сурова, 33. Планировка с жилой площадью 60 м эффективно зонирована, обеспечивая комфортное размещение мебели...
    • 66 м²
    • 3-ком
    • 7/10 эт.
    4 950 000 Р
    Агент
    +7 (917) Показать номер
    Посмотреть контакты
    2-комнатная квартира: Ульяновск, улица Гагарина, 24 (46.8 м) - Фото 1
    2-комнатная квартира: Ульяновск, улица Гагарина, 24 (46.8 м) - Фото 2
    2-комнатная квартира, общая площадь 46м², жилая 29м², кухня 6м²

    Арт.Предлагаем вашему вниманию уютную и просторную 2-комнатную квартиру, расположенную в самом сердце города. Квартира идеально подойдет тем, кто ценит комфорт и удобство проживания в центральной части города. Основные характеристики: - Выполнен качественный...
    • 46 м²
    • 2-ком
    • 1/5 эт.
    5 000 000 Р
    Агент
    +7 (965) Показать номер
    Посмотреть контакты
    2-к кв. Ульяновская область, Ульяновск ул. 154-й Стрелковой дивизии, ... - Фото 1
    2-к кв. Ульяновская область, Ульяновск ул. 154-й Стрелковой дивизии, ... - Фото 2
    2-комнатная квартира, общая площадь 53м², жилая 28м², кухня 12м²

    В Юго-Западном районе предлагаем отличную квартиру с ремонтом в доме 2016г. постройки С покупателя комиссию не берем Дом с поквартирным отоплением Удобное планировочное решение - в виде распашонки. Большая просторная кухня с выходом на балкон ( застеклен,...
    • 53 м²
    • 2-ком
    • 1/3 эт.
    • панельный
    5 100 000 Р
    Агент
    +7 (987) Показать номер
    Посмотреть контакты

    Не нашли подходящего объявления?

    Оставьте заявку, и наши риэлторы подберут квартиру в районе Ульяновска

    (0)