5 500 000 Р 68 910 $ или 59 180

Информация о квартире

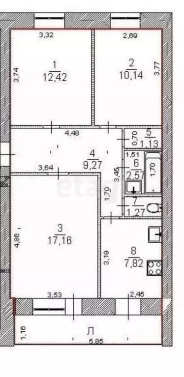
66 м2
Площадь
40 м2
Жилая
10 м2
Кухня
3
Комнаты
9
Этаж
9
Этажность

Дополнительная информация

Тип дома
кирпичный
Развернуть
Агент
+7 (917) 060-28-44
Начать чат с агентом

3-к кв. Ульяновская область, Ульяновск просп. Гая, 80 (66.0 м)

Продается уютная 3-комнатная квартира площадью 66 кв. м на последнем, девятом этаже кирпичного дома 1981 года постройки. Это отличный вариант для тех, кто ищет просторное жилье в тихом районе. В квартире комфортные 42 кв. м жилой площади и удобная кухня площадью 10 кв. м. Окна выходят как на улицу, так и во двор, что обеспечивает хорошую освещенность и вентиляцию.Квартира в хорошем состоянии, выполнен косметический ремонт. Комнаты светлые и просторные, что позволяет создать уютную атмосферу для жизни. Встроенная мебель и техника остаются новым владельцам, что делает переезд еще более комфортным. В квартире есть отдельный санузел и просторная лоджия, где можно устроить зону отдыха или хранить вещи.Дом находится в хорошем состоянии, оборудован пассажирским лифтом и мусоропроводом, что значительно упрощает бытовые нужды. Придомовая территория благоустроена, есть наземная парковка, поэтому всегда найдется место для вашего автомобиля.Район с хорошо развитой инфраструктурой: рядом расположены школы, детские сады, клиники и разнообразные магазины. Это значит, что все необходимые услуги и товары будут в шаговой доступности. Удобная транспортная развязка позволит быстро добраться до других районов города.Условия сделки: продажа квартиры по договору купли-продажи. Возможна покупка в ипотеку, все документы готовы к сделке. Квартира без обременений и юридически чиста, что гарантирует спокойствие и уверенность новым владельцам.Приглашаем вас на просмотр Записывайтесь на удобное для вас время, чтобы лично убедиться в преимуществах этой замечательной квартиры.

Читать полностью

    Для того, чтобы купить трехкомнатную квартиру по адресу: Ульяновск, Железнодорожный, Гая пр-кт., 80, позвоните по телефону +7 (917) 060-28-44. Торопитесь! Объявление №30091393971 о продаже трехкомнатной квартиры опубликовано 2 дня назад.

    Позвонить Написать
    5 500 000 Р68 910 $ или 59 180
    Агент
    +7 (917) 060-28-44
    Начать чат с агентом
    Похожие предложения
    1-к кв. Ульяновская область, Ульяновск просп. Гая, 35 (47.15 м) - Фото 1
    1-к кв. Ульяновская область, Ульяновск просп. Гая, 35 (47.15 м) - Фото 2
    1-комнатная квартира, общая площадь 47м², жилая 12м², кухня 6м²

    Арт.Продаётся уютная 1-комнатная квартира в Железнодорожном районе ПРО ДОМ:Кирпичный 10-ти этажный домУхоженный подъездСпокойные соседиМного парковочных местПРО КВАРТИРУ:Функциональная планировкаЗастекленный балконКачественная отделкаРемонт выполнен...
    • 47 м²
    • 1-ком
    • 5/10 эт.
    • кирпичный
    5 570 000 Р
    Агент
    +7 (917) Показать номер
    Посмотреть контакты
    3-к кв. Ульяновская область, Ульяновск Хрустальная ул., 28 (62.39 м) - Фото 1
    3-к кв. Ульяновская область, Ульяновск Хрустальная ул., 28 (62.39 м) - Фото 2
    3-комнатная квартира, общая площадь 62м², жилая 43м², кухня 6м²

    Просторная 3-комнатная квартира для семьи в кирпичном доме Продаётся квартира по адресу: г. Ульяновск, ул. Хрустальная, д. 28. Общая площадь — 62,4 м.Квартира находится на 8 этаже, работает лифт, подъезд чистый и ухоженный. Кирпичный дом отличается тёплыми...
    • 62 м²
    • 3-ком
    • 8/9 эт.
    • кирпичный
    5 400 000 Р
    Агент
    +7 (987) Показать номер
    Посмотреть контакты
    4-к кв. Ульяновская область, Ульяновск ул. Кирова, 50 (70.9 м) - Фото 1
    4-к кв. Ульяновская область, Ульяновск ул. Кирова, 50 (70.9 м) - Фото 2
    4-комнатная квартира, общая площадь 70м², жилая 39м², кухня 11м²

    Продаётся уютная четырёхкомнатная квартира площадью 70.9 квадратных метров на втором этаже кирпичного дома, расположенного по адресу: Ульяновск, 4-й микрорайон, улица Кирова, дом 50. Дом построен в 1980 году и имеет 12 этажей.Квартира обладает жилой площадью...
    • 70 м²
    • 4-ком
    • 2/12 эт.
    • кирпичный
    5 500 000 Р
    Агент
    +7 (917) Показать номер
    Посмотреть контакты
    1-к кв. Ульяновская область, Ульяновск Железнодорожная ул., 53 (41.1 ... - Фото 1
    1-к кв. Ульяновская область, Ульяновск Железнодорожная ул., 53 (41.1 ... - Фото 2
    1-комнатная квартира, общая площадь 41м², жилая 19м², кухня 10м²

    Продается отличная однокомнатная квартира в ЖК Свобода (4 мкрн). Квартира находится на комфортном этаже клубного пятиэтажного дома. В доме поквартирное отопление, индивидуальный газовый котел. Квартира теплая и светлая, окна на солнечную сторону. Квартира...
    • 41 м²
    • 1-ком
    • 3/5 эт.
    • кирпичный
    5 600 000 Р
    Агент
    +7 (986) Показать номер
    Посмотреть контакты
    3-к кв. Ульяновская область, Ульяновск Карсунская ул., 1 (61.8 м) - Фото 1
    3-к кв. Ульяновская область, Ульяновск Карсунская ул., 1 (61.8 м) - Фото 2
    3-комнатная квартира, общая площадь 61м², кухня 7м²

    ПРОДАЁТСЯ светлая, чистая, уютная квартира в 4-м микрорайоне Квартира переходной серии (не хрущёвка) В квартире косметический ремонт, балкон застеклен. В квартире изолированные комнаты, раздельный санузел.Комнаты квадратные, вместительные. Санузел в...
    • 61 м²
    • 3-ком
    • 4/5 эт.
    • кирпичный
    5 600 000 Р
    Агент
    +7 (986) Показать номер
    Посмотреть контакты

    Не нашли подходящего объявления?

    Оставьте заявку, и наши риэлторы подберут квартиру в районе Ульяновска

    (0)