3 610 000 Р 44 630 $ или 38 660

Информация о квартире

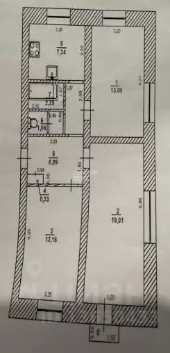
44 м2
Площадь
5 м2
Кухня
1
Комната
1
Этаж
4
Этажность

Дополнительная информация

Тип дома
кирпичный
Развернуть
Агент
+7 (987) 631-32-91
Начать чат с агентом

1-к кв. Ульяновская область, Ульяновск Почтовая ул., 20 (44.1 м)

Уникальная однокомнатная квартира с отдельным входом Идеальный вариант для тех, кто ценит комфорт и индивидуальность Продается однокомнатная квартира нестандартной планировки общей площадью44,1 кв.м. Особенность этой квартиры отдельный вход, что создает ощущение проживания в собственном доме Квартира располагается по адресу: ул. Почтовая, д. 20/11. Преимущества:Отдельный вход: Забудьте о шумных подъездах и соседях ваш личный вход с улицы Нестандартная планировка: Простор для реализации дизайнерских идей и создания уникального интерьера.Уют и комфорт: В квартире сделан ремонт, заменена проводка, установлены теплые полы в прихожей и ванной комнате готовность к проживанию сразу после покупки Теплый кирпичный дом: Надежность и долговечность, отличная тепло- и звукоизоляция.Удобства: Совмещенный санузел с душевой кабиной.Отличное состояние: Квартира не требует дополнительных вложений, можно сразу заезжать и жить Эта однокомнатная квартира идеально подойдет как для молодого специалиста, так и для небольшой семьи или сдачи в аренду. Расположение дома обеспечивает удобный доступ ко всем необходимым объектам инфраструктуры.Не упустите свой шанс стать владельцем уютного жилья Звоните прямо сейчас и договоритесь о просмотре

Читать полностью

    Для того, чтобы купить однокомнатную квартиру по адресу: Ульяновск, Заволжский, ул. Почтовая, 20, позвоните по телефону +7 (987) 631-32-91. Торопитесь! Объявление №30090318185 о продаже однокомнатной квартиры опубликовано 29 октября 2025.

    Позвонить Написать
    3 610 000 Р44 630 $ или 38 660
    Агент
    +7 (987) 631-32-91
    Начать чат с агентом
    Похожие предложения
    1-к кв. Ульяновская область, Ульяновск просп. Туполева, 2 (35.5 м) - Фото 1
    1-к кв. Ульяновская область, Ульяновск просп. Туполева, 2 (35.5 м) - Фото 2
    1-комнатная квартира, общая площадь 35м², кухня 7м²

    Продается уютная однокомнатная квартира в Заволжском районе Ульяновска Предлагаем вашему вниманию светлую и комфортную однокомнатную квартиру общей площадью 35,5 метров на третьем этаже 9-этажного дома. Эта квартира станет отличным вариантом как для...
    • 35 м²
    • 1-ком
    • 3/9 эт.
    • панельный
    3 590 000 Р
    Агент
    +7 (987) Показать номер
    Посмотреть контакты
    3-к кв. Ульяновская область, Ульяновск ул. Жуковского, 51 (65.4 м) - Фото 1
    3-к кв. Ульяновская область, Ульяновск ул. Жуковского, 51 (65.4 м) - Фото 2
    3-комнатная квартира, общая площадь 65м², жилая 46м², кухня 7м²

    Арт.Лучшее предложение в районе - просторная 3-комнатная квартира с хорошим ремонтом. Квартира, куда вы можете сразу заехать и жить, расположена по адрecу: ул. Жуковского, д.51, общeй площaдью 65.4 кв.м. ПPО ДОКУМEHТЫ:2 взрослых собственника БОЛЕЕ 10...
    • 65 м²
    • 3-ком
    • 2/2 эт.
    • кирпичный
    3 550 000 Р
    Агент
    +7 (917) Показать номер
    Посмотреть контакты
    1-к кв. Ульяновская область, Ульяновск Ульяновский просп., 7 (36.9 м) - Фото 1
    1-к кв. Ульяновская область, Ульяновск Ульяновский просп., 7 (36.9 м) - Фото 2
    1-комнатная квартира, общая площадь 36м², кухня 9м²

    Представьте себе уютное гнездышко в самом сердце Нового города светлую, просторную однокомнатную квартиру, где каждое утро вас будут ласковые лучи солнца. Это не просто жилье, а ваш личный оазис комфорта с идеальным расположением и потрясающей инфраструктурой....
    • 36 м²
    • 1-ком
    • 3/9 эт.
    • панельный
    3 500 000 Р
    Агент
    +7 (917) Показать номер
    Посмотреть контакты
    1-к кв. Ульяновская область, Ульяновск ул. Карбышева, 44 (32.3 м) - Фото 1
    1-к кв. Ульяновская область, Ульяновск ул. Карбышева, 44 (32.3 м) - Фото 2
    1-комнатная квартира, общая площадь 32м², жилая 14м², кухня 12м²

    Продам 1 ком кв в отличном состоянии с мебелью.
    • 32 м²
    • 1-ком
    • 11/20 эт.
    • монолит
    3 600 000 Р
    Агент
    +7 (917) Показать номер
    Посмотреть контакты
    3-к кв. Ульяновская область, Ульяновск Оренбургская ул., 34 (59.7 м) - Фото 1
    3-к кв. Ульяновская область, Ульяновск Оренбургская ул., 34 (59.7 м) - Фото 2
    3-комнатная квартира, общая площадь 59м², жилая 30м², кухня 7м²

    Экологически чистый район на Верхней террасе рядом с парком 40-летия ВЛКСМ, где много прогулочных мест, зоопарк, волжский пляж и выезд на Президентский мост. Продается 3-х комнатная квартира-распашонка в панельном доме 75 серии.Состояние квартиры приличное,...
    • 59 м²
    • 3-ком
    • 3/5 эт.
    • панельный
    3 650 000 Р
    Агент
    +7 (917) Показать номер
    Посмотреть контакты

    Не нашли подходящего объявления?

    Оставьте заявку, и наши риэлторы подберут квартиру в районе Ульяновска

    (0)