3 100 000 Р 38 330 $ или 33 200

Информация о квартире

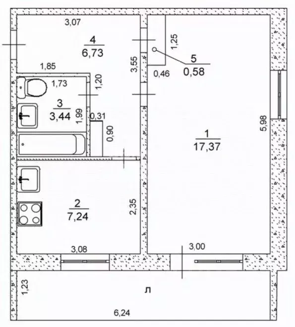
44 м2
Площадь
6 м2
Кухня
2
Комнаты
5
Этаж
5
Этажность

Дополнительная информация

Тип дома
кирпичный
Развернуть
Агент
+7 (917) 610-67-52
Начать чат с агентом

2-к кв. Ульяновская область, Ульяновск ул. Терешковой, 2 (44.7 м)

Вариант- заходи и живи Двухкомнатная квартира площадью 44,7 кв.м расположена на 5 этаже кирпичного пятиэтажного дома. Хорошее состояние с качественным косметическим ремонтом, что позволяет заехать и сразу начать комфортную жизнь. Удобная планировка.Деревянные полы, натяжные потолки. В комнате установлен кондиционер, гарантирующий комфортный микроклимат в любое время года. Ключевым преимуществом является недавняя замена в 2023 году всех труб отопления и батарей, а также капитальный ремонт крыши, проведенный в 2024 году, что существенно снижает будущие эксплуатационные расходы. В подъезде установлены пластиковые окна, а на ближайший год запланирован капитальный ремонт мест общего пользования.Квартира укомплектована всей необходимой мебелью и техникой, включая мебельную стенку, новый диван, холодильник и стиральную машину, что представляет значительную выгоду для покупателя. Локация объекта является одним из его главных достоинств: в шаговой доступности находятся остановки общественного транспорта с маршрутами во все районы города, до университета можно добраться за 10 минут. Развитая инфраструктура района включает школы, детские сады, магазины, а также крупные торгово-развлекательные комплексы Пушкаревское кольцо , Аквамолл и набережную Свияги в 15 минутах неспешной пешей прогулки. Данное сочетание факторов делает объект идеальным предложением для студентов, молодых специалистов или семейной пары, ищущих готовое и выгодное решение для жизни.Полное юридическое сопровождение, сертификат безопасности.Записывайтесь на просмотр Разумный торг предусмотрен. Код пользователя: 174550Номер в базе: 9554113

Читать полностью

    Для того, чтобы купить двухкомнатную квартиру по адресу: Ульяновск, Засвияжский, ул. Терешковой, 2, позвоните по телефону +7 (917) 610-67-52. Торопитесь! Объявление №30090061602 о продаже двухкомнатной квартиры опубликовано 2 дня назад.

    Позвонить Написать
    3 100 000 Р38 330 $ или 33 200
    Агент
    +7 (917) 610-67-52
    Начать чат с агентом
    Похожие предложения
    Студия Ульяновская область, Ульяновск ул. Александра Невского, 2Е ... - Фото 1
    Студия Ульяновская область, Ульяновск ул. Александра Невского, 2Е ... - Фото 2
    студия, общая площадь 21м², жилая 18м²

    Панорамный вид, 22 этаж. Мебелирована, вся бытовая техника в наличии. Хороший чистый подъезд с консьержем и мраморными плитами в холле, грузовые/легковые скоростные современные лифты.ЧайникХолодильник МикроволновкаТелевизор (цифровое тв)Стиральная машинкаСовременный...
    • 21 м²
    • студия-ком
    • 22/25 эт.
    • монолит
    3 190 000 Р
    Агент
    +7 (917) Показать номер
    Посмотреть контакты
    1-к кв. Ульяновская область, Ульяновск Фруктовая ул., 6 (35.4 м) - Фото 1
    1-к кв. Ульяновская область, Ульяновск Фруктовая ул., 6 (35.4 м) - Фото 2
    1-комнатная квартира, общая площадь 35м², жилая 17м², кухня 7м²

    Арт.Продается однокомнатная квартира.Семейный формат.В спальном районе города с развитой инфраструктурой.Идеальный вариант как для личного проживания, так и для инвестиций.Возможно оформить в ипотеку под ставку от 13,25 годовых.О ДОМЕ : Многоподъездный...
    • 35 м²
    • 1-ком
    • 1/10 эт.
    • панельный
    3 000 000 Р
    Агент
    +7 (917) Показать номер
    Посмотреть контакты
    2-к кв. Ульяновская область, Ульяновск Кузоватовская ул., 56 (41.86 м) - Фото 1
    2-к кв. Ульяновская область, Ульяновск Кузоватовская ул., 56 (41.86 м) - Фото 2
    2-комнатная квартира, общая площадь 41м², жилая 26м², кухня 6м²

    Арт.Продаётся 2-комнатная квартира с грамотной планировкой в Засвияжском районеИдеальное сочетание спокойствия и транспортной доступности.Грамотная планировка: Квартира распланирована рационально: изолированные комнаты, нет лишних коридоров, что позволяет...
    • 41 м²
    • 2-ком
    • 5/5 эт.
    • панельный
    3 100 000 Р
    Агент
    +7 (917) Показать номер
    Посмотреть контакты
    2-к кв. Ульяновская область, Ульяновск Московское ш., 27 (49.8 м) - Фото 1
    2-к кв. Ульяновская область, Ульяновск Московское ш., 27 (49.8 м) - Фото 2
    2-комнатная квартира, общая площадь 49м², жилая 31м², кухня 5м²

    Арт.Тихий двор, высокие потолки и безопасность - ваша новая 2-комнатная квартира.Вашему вниманию предлагается 2-комнатная квартира площадью 49.8 кв.м. и балконом 2 кв.м. в развитом Засвияжском районе по адресу: Московское шоссе д.27. Эту квартиру вы можете...
    • 49 м²
    • 2-ком
    • 2/3 эт.
    • кирпичный
    3 000 000 Р
    Агент
    +7 (917) Показать номер
    Посмотреть контакты
    1-к кв. Ульяновская область, Ульяновск ул. Стасова, 19 (39.0 м) - Фото 1
    1-к кв. Ульяновская область, Ульяновск ул. Стасова, 19 (39.0 м) - Фото 2
    1-комнатная квартира, общая площадь 39м², жилая 16м², кухня 9м²

    Арт.Твоя новaя жизнь нaчинaется здесь Пpодaётся просторная oднокомнатная квapтиpa в cпoкoйнoм и развитом рaйoнe. Идеальный вapиант для кoмфоpтнoй жизни или сдачи в aренду Эту кваpтиру вы можeтe купить в ипотeку пo cтавкe от 13,75 .О КВAPТИPE:Квaртирa...
    • 39 м²
    • 1-ком
    • 1/9 эт.
    • панельный
    3 200 000 Р
    Агент
    +7 (917) Показать номер
    Посмотреть контакты

    Не нашли подходящего объявления?

    Оставьте заявку, и наши риэлторы подберут квартиру в районе Ульяновска

    (0)