6 269 519 Р 79 020 $ или 67 460

Информация о квартире

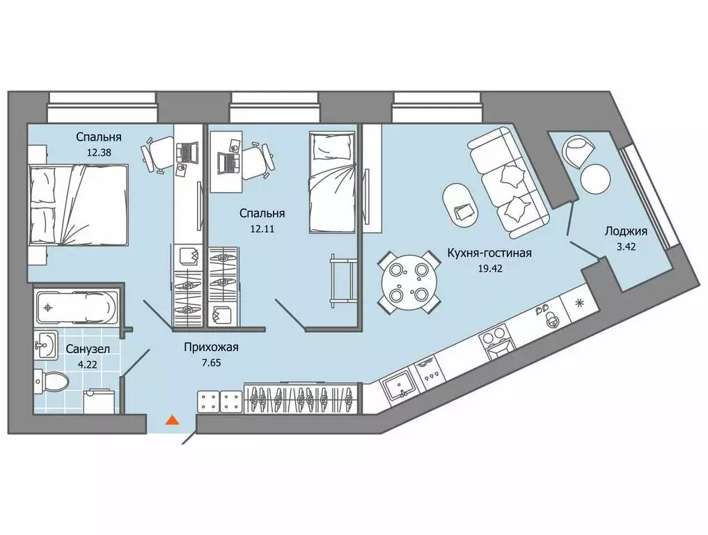
48 м2
Площадь
2
Комнаты
7
Этаж
9
Этажность

Дополнительная информация

Тип дома
кирпичный
Развернуть
Агент
+7 (939) 045-43-59
Начать чат с агентом

2-к кв. Ульяновская область, Ульяновск Новый Город мкр, Центральный ...

В Заволжском районе Ульяновска продается 2-комнатная квартира площадью 48.00 кв. м. Квартира расположена на 7 этаже 9 корпуса в жилом комплексе CENTROPOLIS 2.0 ( Центрополис 2.0 ).CENTROPOLIS 2.0 ( Центрополис 2.0 ) - новый перспективный проект, который является логичным продолжением уже знакомого проекта от ГК Железно CENTROPOLIS. Расположенный на берегу Волги, комплекс имеет отличную транспортную доступность и инфраструктуру на уровне центра города. АрхитектураАрхитектурная концепция Центрополис 2.0 - еще более современного прочтения, чем у Centropolis . На фасадах присутствует многообразие форм, текстур и фактурных материалов, для отделки использована благородная штукатурка, что придает комплексу одновременную простоту и элегантность. Доказано, что архитектура влияет на эмоциональное состояние человека и формирует его мировоззрение - именно поэтому облик нового Центрополиса продуман до мелочей. Входные группыУникальная особенность общественных пространств - инновационный подход к оформлению интерьера. В МОПы внедрен салютогенный дизайн, направленный на улучшение здоровья и самочувствия людей. Максимум дневного света, свежий и чистый воздух, нейтральная цветовая гамма с акцентами в природных тонах и минимализм в интерьере создают атмосферу порядка, структуры и понятности. БлагоустройствоПо задумке авторов проекта, в основе благоустройства лежит концепция Острова , где дворы символизируют ландшафтные регионы России, объединенные единой артерией -рекой вдоль центральной аллеи. Каждый двор соответствует уникальной тематике, многоуровневое освещение создает атмосферу уюта. Тихие зоны отдыха украшает всесезонное озеленение и геопластика холмов, в активных зонах - протяженные велодорожки, площадки для командных игр и прочное оборудование в природной гамме. В уютных двориках расположены площадки для самых маленьких, а в ландшафтных аллеях - зоны для детей среднего и старшего возраста. Инфраструктура Комплекс расположен в экологически чистой зоне центра Нового города, в шаговой доступности - Прибрежный парк и живописный берег Волги. Район обеспечен всей необходимой инфраструктурой, достаточно нескольких минут, чтобы дойти до детского сада, лицея, супермаркета или салона красоты.

Читать полностью
    Позвонить Написать
    6 269 519 Р79 020 $ или 67 460
    Агент
    +7 (939) 045-43-59
    Начать чат с агентом
    Похожие предложения в Ульяновске
    2-к кв. Ульяновская область, Ульяновск Новый Город мкр, Центральный ... - Фото 1
    2-к кв. Ульяновская область, Ульяновск Новый Город мкр, Центральный ... - Фото 2
    2-комнатная квартира, общая площадь 50м², жилая 27м², кухня 9м²

    В Заволжском районе Ульяновска продается 2-комнатная квартира площадью 50.00 кв. м. Квартира расположена на 3 этаже 9 корпуса в жилом комплексе CENTROPOLIS 2.0 ( Центрополис 2.0 ).CENTROPOLIS 2.0 ( Центрополис 2.0 ) - новый перспективный проект, который...
    • 50 м²
    • 2-ком
    • 3/8 эт.
    • кирпичный
    6 338 025 Р
    Агент
    +7 (939) Показать номер
    Посмотреть контакты
    2-комнатная квартира: Ульяновск, жилой комплекс Город Новаторов, 5 (57 ... - Фото 1
    2-комнатная квартира: Ульяновск, жилой комплекс Город Новаторов, 5 (57 ... - Фото 2
    2-комнатная квартира, общая площадь 57м²

    Продается двухкомнатная квартира № 69 в новостройке ЖК «Город новаторов по адресу Приволжский федеральный округ, Ульяновская область, Ульяновск, ул. Героя Российской Федерации А.В. Колпакова, д. 7. Общая площадь квартиры – 57.00 кв. м., этаж 5 из 6,...
    • 57 м²
    • 2-ком
    • 5/9 эт.
    6 236 898 Р
    Агент
    +7 (917) Показать номер
    Посмотреть контакты
    3-к кв. Ульяновская область, Ульяновск ул. Генерала Кашубы (51.6 м) - Фото 1
    3-к кв. Ульяновская область, Ульяновск ул. Генерала Кашубы (51.6 м) - Фото 2
    3-комнатная квартира, общая площадь 51м²

    Продается 3-комн. квартира комфорт-класса на 4 этаже в клубном доме на Генерала Кашубы Дом на Генерала Кашубы — нoвый пpoeкт MN Group в тихом и экологически чистом районе Заволжья. Жилoй дoм cостоит из двуx сeкций и гaрмонично вписывается в существующую...
    • 51 м²
    • 3-ком
    • 4/4 эт.
    • панельный
    6 387 981 Р
    Агент
    +7 (924) Показать номер
    Посмотреть контакты
    1-к кв. Ульяновская область, Ульяновск Город Новаторов жилой комплекс, ... - Фото 1
    1-к кв. Ульяновская область, Ульяновск Город Новаторов жилой комплекс, ... - Фото 2
    1-комнатная квартира, общая площадь 44м², жилая 10м², кухня 20м²

    Продается однокомнатная квартира 8 в новостройке ЖК Город новаторов по адресу Приволжский федеральный округ, Ульяновская область, Ульяновск, ул. Героя Российской Федерации А.В. Колпакова, д. 7. Общая площадь квартиры - 44.00 кв. м., этаж 2 из 6, секция...
    • 44 м²
    • 1-ком
    • 2/6 эт.
    • монолит
    6 288 430 Р
    Агент
    +7 (923) Показать номер
    Посмотреть контакты
    1-к кв. Ульяновская область, Ульяновск Новый Город мкр, Центральный ... - Фото 1
    1-к кв. Ульяновская область, Ульяновск Новый Город мкр, Центральный ... - Фото 2
    1-комнатная квартира, общая площадь 45м²

    В центральном квартале Ульяновска продается 1-комнатная квартира площадью 45.00 кв. м. Квартира расположена на 6 этаже дома 6 в жилом комплексе комфорт-класса Centropolis ( Центрополис ). Мечта жить в центре Нового города теперь осуществима Квартал...
    • 45 м²
    • 1-ком
    • 6/14 эт.
    • монолит
    6 275 020 Р
    Агент
    +7 (994) Показать номер
    Посмотреть контакты

    Не нашли подходящего объявления?

    Оставьте заявку, и наши риэлторы подберут квартиру в новостройке в районе Ульяновска

    (0)