6 617 600 Р 81 750 $ или 70 560

Информация о квартире

60 м2
Площадь
2
Комнаты
13
Этаж
16
Этажность
Развернуть
Агент
+7 (800) 333-03-43
Начать чат с агентом

2-к кв. Ульяновская область, Ульяновск Новый Город мкр, 17-й кв-л, ...

Продаётся 2-комнатная квартира в строящемся доме (дом 5), срок сдачи: I-кв. 2026, общей площадью 60.16 кв.м., на 13 этаже. Атмосфера - жилой комплекс комфорт-класса, в основу которого заложены принципы респектабельного и обособленного проживания. Одно из главных преимуществ нового ЖК огороженная территория с просторным двором, доступ в который осуществляется только для резидентов.Удобное месторасположение позволит будущим владельцам квартир обособиться на своей закрытой территории, находясь при этом в шаге от всех необходимых социальных и бытовых объектов в центре Нового города.- 16-24этажные дома с видовыми квартирами на лес и город.- Близость к лесопарковой зоне и Волге (7 минут до пляжа).- Респектабельное и обособленное проживание на закрытой территории.- Парковка вынесена за пределы ЖК (закрытый просторный двор без машин и посторонних).- Видеонаблюдение и пост охраны в каждом доме.- Квартиры в продаже с отделкой и без.- Просторные дизайнерские холлы. Консьерж-сервис.- Индивидуальный тепловой пункт (экономия на коммунальных платежах).- Панорамное остекление.- Ландшафтный дизайн дворов.- Детские игровые и спортивные площадки, ворк-аут зоны на свежем воздухе.- Развитая инфраструктура.- Собственная управляющая компания.- Уютные кофейни, магазины, салоны на территории ЖК.- В пешей доступности: парк Прибрежный , 4 школы, детские сады, супермаркеты, гипермаркет строительных материалов и др.От застройщика действуют специальные предложения по рассрочке, выгодные ипотечные программы и скидки на квартиры. Узнать более подробную информацию можно в отделе продаж.Купи свою атмосферу

Читать полностью
    Позвонить Написать
    6 617 600 Р81 750 $ или 70 560
    Агент
    +7 (800) 333-03-43
    Начать чат с агентом
    Похожие предложения в Ульяновске
    2-к кв. Ульяновская область, Ульяновск Новый Город мкр, 17-й кв-л, На ... - Фото 1
    2-к кв. Ульяновская область, Ульяновск Новый Город мкр, 17-й кв-л, На ... - Фото 2
    2-комнатная квартира, общая площадь 68м², жилая 27м², кухня 22м²

    Продаётся 2-комнатная квартира в строящемся доме (Корпус 1), срок сдачи: III-кв. 2026, общей площадью 68.33 кв.м., на 5 этаже. Новый жилой комплекс Дом в Заволжском р-не от застройщика КПД-асположен по адресу Россия, Ульяновск, проспект Маршала Устинова....
    • 68 м²
    • 2-ком
    • 5/9 эт.
    6 540 000 Р
    Агент
    +7 (967) Показать номер
    Посмотреть контакты
    2-к кв. Ульяновская область, Ульяновск Новый Город мкр, Светлые ... - Фото 1
    2-к кв. Ульяновская область, Ульяновск Новый Город мкр, Светлые ... - Фото 2
    2-комнатная квартира, общая площадь 62м², жилая 24м², кухня 18м²

    В Заволжском районе Ульяновска, рядом с Прибрежным парком, продается 2-комнатная квартира площадью 62.00 кв. м. Квартира находится на 3 этаже дома 3 комплекса комфорт-класса Светлые кварталы (Застройщик - ГК Железно ).Комфортная жизнь на приватной...
    • 62 м²
    • 2-ком
    • 3/8 эт.
    • панельный
    6 689 025 Р
    Агент
    +7 (923) Показать номер
    Посмотреть контакты
    1-к кв. Ульяновская область, Ульяновск ул. Тимирязева, 48А (46.9 м) - Фото 1
    1-комнатная квартира, общая площадь 46м²

    Продаётся 1-комнатная квартира в сданном доме (Тимирязева, 48А (2 этап)), срок сдачи: I-кв. 2025, общей площадью 46.9 кв.м., на 6 этаже. Новый жилой дом от застройщика СЗ СКНасположен по адресу Ульяновск, улица Тимирязева, 48А.
    • 46 м²
    • 1-ком
    • 6/7 эт.
    • кирпичный
    6 558 514 Р
    Агент
    +7 (800) Показать номер
    Посмотреть контакты
    2-к кв. Ульяновская область, Ульяновск Киндяковка мкр, Заря жилой ... - Фото 1
    2-к кв. Ульяновская область, Ульяновск Киндяковка мкр, Заря жилой ... - Фото 2
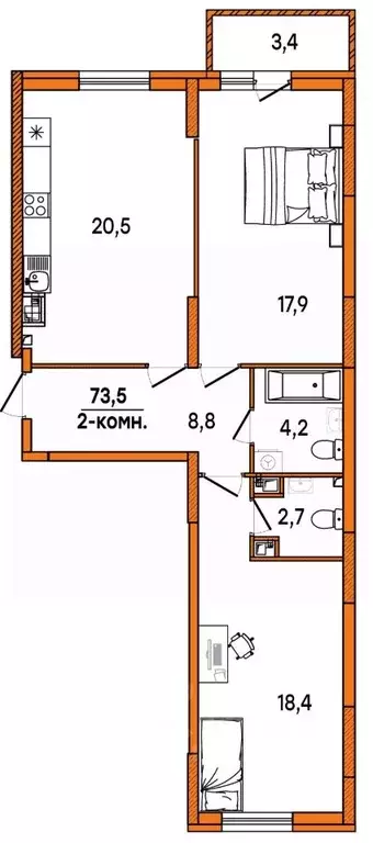
    2-комнатная квартира, общая площадь 73м²

    Продаётся 2-комнатная квартира в строящемся доме (дом 6), срок сдачи: IV-кв. 2027, общей площадью 73.5 кв.м., на 2 этаже. Расположение, транспортная доступность Проект комплексной застройки Заря находится на пересечении улиц Кольцевой и Варейкиса, в...
    • 73 м²
    • 2-ком
    • 2/16 эт.
    6 615 000 Р
    Агент
    +7 (800) Показать номер
    Посмотреть контакты
    2-комнатная квартира, общая площадь 60м²

    Продаётся 2-комнатная квартира в строящемся доме (дом 6), срок сдачи: IV-кв. 2025, общей площадью 60.6 кв.м., на 1 этаже. Кварталы для семейной и уютной жизни. Клубные 5-9 этажные дома из премиального дизайнерского кирпича, с индивидуальной архитектурой...
    • 60 м²
    • 2-ком
    • 1/5 эт.
    • кирпичный
    6 666 000 Р
    Агент
    +7 (992) Показать номер
    Посмотреть контакты

    Не нашли подходящего объявления?

    Оставьте заявку, и наши риэлторы подберут квартиру в новостройке в районе Ульяновска

    (0)