4 655 000 Р 56 080 $ или 48 070

Информация о квартире

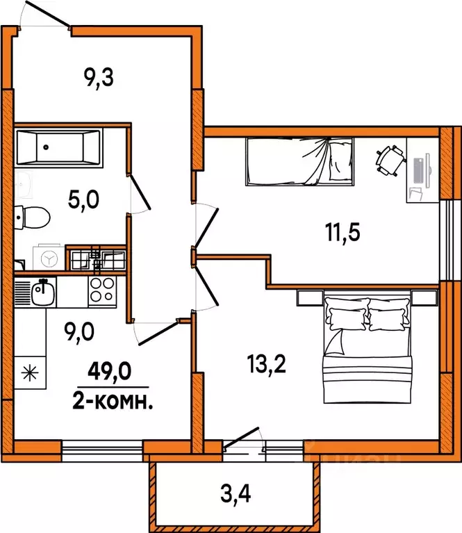
49 м2
Площадь
2
Комнаты
5
Этаж
16
Этажность
Развернуть
Агент
Риелтор
+7 (800) 333-03-43
Начать чат с агентом

2-к кв. Ульяновская область, Ульяновск Киндяковка мкр, Заря жилой ...

Продаётся 2-комнатная квартира в строящемся доме (дом 6), срок сдачи: IV-кв. 2027, общей площадью 49 кв.м., на 5 этаже. Расположение, транспортная доступность Проект комплексной застройки Заря находится на пересечении улиц Кольцевой и Варейкиса, в 700 метрах от берега Волги. Железнодорожный район - один из самых развитых и густонаселенных в Ульяновске. Рядом с домами - остановка общественного транспорта и множество объектов инфраструктуры, в двадцати минутах пешком расположен парк Винновская Роща . На автобусе можно доехать до железнодорожного вокзала, речного порта и центра города. Расстояние от ЖК Заря до международного аэропорта Баратаевка - 10 км, до федеральной трассы М-5 Урал (Москва - Челябинск) - 7,5 км. Инфраструктура В непосредственной близости от домов находятся: продуктовые магазины и супермаркет Пятерочка , детские сады, гимназия 30, школа 58, детская поликлиника 4 и ТЦ Хороший . В пятнадцати минутах пешком расположен ФОК Автомобилист . На автобусе можно доехать до школы искусств, общеобразовательных школ 47 и 48, Дома культуры, Театра кукол, ЦУМа, ФОКа Новое поколение , различных торговых центров, медицинских клиник и государственных учреждений, расположенных в центре города. Автобус 21 следует до лицея им. Мендельсона, Ульяновского университета, Южного рынка, областной больницы, Центробанка, ряда крупных коммерческих банков и деловых центров. Надежность застройщика Застройщик проекта ЖК Заря - ООО Средневолжская Строительная Компания . Предприятие входит в состав группы КПД-1 ( Комбинат панельного домостроения-1 ), которая ведет строительную и производственную деятельность с 1962 года. Более 50 лет комбинат выпускает железобетонные изделия, проектирует и строит дома. Основной регион работ - Поволжье, в том числе города: Ульяновск, Самара, Тольятти, Саранск, Сызрань и Казань. Группа КПД-1 специализируется на возведении панельных домов, выполняет весь цикл работ (от проектирования до сдачи в эксплуатацию) и демонстрирует высокие темпы строительства: десятиэтажная секция монтируется заабочих смен. Прокладка коммуникационных систем и отделка помещений выполняются параллельно со строительными работами. В Ульяновске застройщик реализует несколько проектов, среди которых жилые комплексы Репино на Панорамной улице и Авиатор на проспекте Маршала Устинова за Волгой. Архитектура В состав жилого комплекса Заря входит шесть панельных корпусов высотой от 9 до 16 этажей. Индустриальная панельная 75-я серия домов отличается улучшенными теплозащитными свойствами (трехслойные наружные стены из керамзитобетонных панелей имеют слой пенопластового утеплителя 150 мм), выбором планировочных решений, а также более качественными и ровными поверхностями полов, стен и потолков. Наружные стены не являются несущими, конструктивная схема зданий - поперечно-стеновая. Фасады домов окрашены в разные цвета. В комплексе представлены однокомнатные, двухкомнатные и трехкомнатные квартиры общей площадью от 38 до 80 кв. м и с пото

Читать полностью
    Позвонить Написать
    4 655 000 Р56 080 $ или 48 070
    Агент
    Риелтор
    +7 (800) 333-03-43
    Начать чат с агентом
    Похожие предложения в Ульяновске
    1-к кв. Ульяновская область, Ульяновск Киндяковка мкр, Заря жилой ... - Фото 1
    1-к кв. Ульяновская область, Ульяновск Киндяковка мкр, Заря жилой ... - Фото 2
    1-комнатная квартира, общая площадь 47м²

    Продаётся 1-комнатная квартира в строящемся доме (дом 6), срок сдачи: IV-кв. 2027, общей площадью 47.4 кв.м., на 14 этаже. Расположение, транспортная доступность Проект комплексной застройки Заря находится на пересечении улиц Кольцевой и Варейкиса,...
    • 47 м²
    • 1-ком
    • 14/16 эт.
    4 645 200 Р
    Агент
    +7 (800) Показать номер
    Посмотреть контакты
    1-к кв. Ульяновская область, Ульяновск Киндяковка мкр, Заря жилой ... - Фото 1
    1-к кв. Ульяновская область, Ульяновск Киндяковка мкр, Заря жилой ... - Фото 2
    1-комнатная квартира, общая площадь 47м²

    Продаётся 1-комнатная квартира в строящемся доме (дом 6), срок сдачи: IV-кв. 2027, общей площадью 47.4 кв.м., на 11 этаже. Расположение, транспортная доступность Проект комплексной застройки Заря находится на пересечении улиц Кольцевой и Варейкиса,...
    • 47 м²
    • 1-ком
    • 11/16 эт.
    4 645 200 Р
    Агент
    +7 (800) Показать номер
    Посмотреть контакты
    2-к кв. Ульяновская область, Ульяновск Киндяковка мкр, Заря жилой ... - Фото 1
    2-к кв. Ульяновская область, Ульяновск Киндяковка мкр, Заря жилой ... - Фото 2
    2-комнатная квартира, общая площадь 49м²

    Продаётся 2-комнатная квартира в строящемся доме (дом 6), срок сдачи: IV-кв. 2027, общей площадью 49 кв.м., на 3 этаже. Расположение, транспортная доступность Проект комплексной застройки Заря находится на пересечении улиц Кольцевой и Варейкиса, в 700...
    • 49 м²
    • 2-ком
    • 3/16 эт.
    4 655 000 Р
    Агент
    +7 (800) Показать номер
    Посмотреть контакты
    2-к кв. Ульяновская область, Ульяновск Киндяковка мкр, Заря жилой ... - Фото 1
    2-к кв. Ульяновская область, Ульяновск Киндяковка мкр, Заря жилой ... - Фото 2
    2-комнатная квартира, общая площадь 49м²

    Продаётся 2-комнатная квартира в строящемся доме (дом 6), срок сдачи: IV-кв. 2027, общей площадью 49 кв.м., на 8 этаже. Расположение, транспортная доступность Проект комплексной застройки Заря находится на пересечении улиц Кольцевой и Варейкиса, в 700...
    • 49 м²
    • 2-ком
    • 8/16 эт.
    4 753 000 Р
    Агент
    +7 (800) Показать номер
    Посмотреть контакты
    2-к кв. Ульяновская область, Ульяновск Киндяковка мкр, Заря жилой ... - Фото 1
    2-к кв. Ульяновская область, Ульяновск Киндяковка мкр, Заря жилой ... - Фото 2
    2-комнатная квартира, общая площадь 49м²

    Продаётся 2-комнатная квартира в строящемся доме (дом 6), срок сдачи: IV-кв. 2027, общей площадью 49 кв.м., на 9 этаже. Расположение, транспортная доступность Проект комплексной застройки Заря находится на пересечении улиц Кольцевой и Варейкиса, в 700...
    • 49 м²
    • 2-ком
    • 9/16 эт.
    4 753 000 Р
    Агент
    +7 (800) Показать номер
    Посмотреть контакты

    Не нашли подходящего объявления?

    Оставьте заявку, и наши риэлторы подберут квартиру в новостройке в районе Ульяновска

    (0)