2 500 000 Р 31 510 $ или 26 900

Информация о квартире

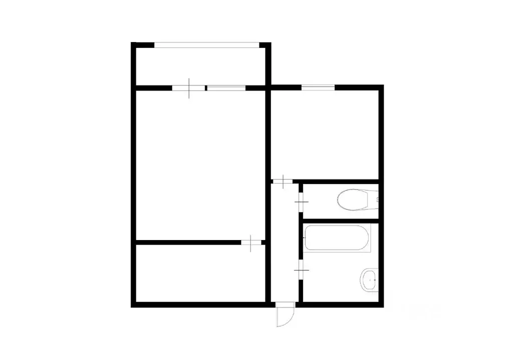
44 м2
Площадь
6 м2
Кухня
2
Комнаты
1
Этаж
5
Этажность
Развернуть
Агент
+7 (905) 348-53-70
Начать чат с агентом

2-комнатная квартира: Димитровград, Западная улица, 26 (44.2 м)

Продается 2 комнатная квартира по ул Западная,26. Дом блочный,1974 г. Этаж 1/5. Общая площадь 44.2 кв.м. Квартира не угловая, комнаты изолированные.Сан узел раздельный, есть счетчики..Квартира очень теплая,чистая. Удачное расположение дома, в шаговой доступности школы и дошкольные учреждения. магазины, аптеки, остановки общественного транспорта. Показ в удобное для вас время,ЗВОНИТЕ Гарантии покупателям:- проверка документов юристом по недвижимости;- юридическое сопровождение сделки;- отсутствие обременений;- помощь в одобрении ипотеки.Риэлторское агентство Жемчужина. Работаем с 1993 года.Профессиональная поддержка клиентов в сделках с недвижимостью.id-10Номер объекта: 5/553709/15387

Читать полностью

    Для того, чтобы купить двухкомнатную квартиру по адресу: Димитровград, ул. Западная, 26, позвоните по телефону +7 (905) 348-53-70. Торопитесь! Объявление №30092065768 о продаже двухкомнатной квартиры опубликовано 27 ноября 2025.

    Позвонить Написать
    2 500 000 Р31 510 $ или 26 900
    Агент
    +7 (905) 348-53-70
    Начать чат с агентом
    Похожие предложения
    2-к кв. Ульяновская область, Димитровград Западная ул., 26 (44.2 м) - Фото 1
    2-к кв. Ульяновская область, Димитровград Западная ул., 26 (44.2 м) - Фото 2
    2-комнатная квартира, общая площадь 44м², кухня 6м²

    Продается 2 комнатная квартира по ул Западная,26. Дом блочный,1974 г. Этаж первый. Общая площадь 44.2 кв.м. Квартира не угловая, комнаты изолированные.Сан узел раздельный, есть счетчики..Квартира очень теплая,чистая. В квартире остается кухонный гарнитур....
    • 44 м²
    • 2-ком
    • 1/5 эт.
    • блочный
    2 500 000 Р
    Агент
    +7 (987) Показать номер
    Посмотреть контакты
    1-к кв. Ульяновская область, Димитровград ул. Циолковского, 10 (36.7 ... - Фото 1
    1-к кв. Ульяновская область, Димитровград ул. Циолковского, 10 (36.7 ... - Фото 2
    1-комнатная квартира, общая площадь 36м², жилая 18м², кухня 7м²

    Продается однокомнатная квартира улучшенной планировки в тихом районе по улице Циолковского, 10. Общая площадь квартиры составляет 36.7 кв. м, жилая площадь — 18.3 кв. м, кухня — 7 кв. м. Квартира расположена на удобном 3-м этаже 9-этажного панельного...
    • 36 м²
    • 1-ком
    • 3/9 эт.
    • панельный
    2 450 000 Р
    Агент
    +7 (917) Показать номер
    Посмотреть контакты
    1-к кв. Ульяновская область, Димитровград просп. Ленина, 24 (33.0 м) - Фото 1
    1-к кв. Ульяновская область, Димитровград просп. Ленина, 24 (33.0 м) - Фото 2
    1-комнатная квартира, общая площадь 33м², кухня 6м²

    Однокомнатная квартира по пр. Ленина,24- центр соцгорода Солнечная и теплая- здесь всегда уютно Площадь 33 кв.м., кухня 6 кв.м. (кухонный гарнитур останется новым собственникам)Окна пластиковые, установлены счетчики.Рядом все, что нужно:* магазины в шаговой...
    • 33 м²
    • 1-ком
    • 9/9 эт.
    • кирпичный
    2 400 000 Р
    Агент
    +7 (987) Показать номер
    Посмотреть контакты
    2-комнатная квартира: Димитровград, улица Курчатова, 2 (49.7 м) - Фото 1
    2-комнатная квартира: Димитровград, улица Курчатова, 2 (49.7 м) - Фото 2
    2-комнатная квартира, общая площадь 49м², жилая 33м², кухня 6м²

    ПРОДАЕТСЯ 2к. КВАРТИРА |Тихий двор | Курчатова 2 |ПЛАНИРОВКА:· Общая площадь: 49.7 кв.м· Жилая площадь каждой комнаты: 18 кв.м, 14 кв.м· Балкон/Лоджия: нет· Окна: / На улицу /ОТДЕЛКА И ОСНАЩЕНИЕ:· Состояние: требуется ремонтИНФРАСТРУКТУРА И ОКРУЖЕНИЕРайон:...
    • 49 м²
    • 2-ком
    • 1/5 эт.
    2 475 000 Р
    Агент
    +7 (917) Показать номер
    Посмотреть контакты
    2-к кв. Ульяновская область, Димитровград ул. Курчатова, 2 (49.9 м) - Фото 1
    2-к кв. Ульяновская область, Димитровград ул. Курчатова, 2 (49.9 м) - Фото 2
    2-комнатная квартира, общая площадь 49м², жилая 33м², кухня 6м²

    Предлагается к покупке уютная 2-комнатная квартира в центре Соцгорода Комнаты просторные и светлые, окна выходят на солнечную сторону дома. Квартира не угловая, расположена на среднем этаже.В спальне имеется кладовка, можно обустроить большую гардеробную....
    • 49 м²
    • 2-ком
    • 4/5 эт.
    • блочный
    2 450 000 Р
    Агент
    +7 (987) Показать номер
    Посмотреть контакты

    Не нашли подходящего объявления?

    Оставьте заявку, и наши риэлторы подберут квартиру в районе Димитровграда

    (0)