2 650 000 Р 33 610 $ или 28 890

Информация о квартире

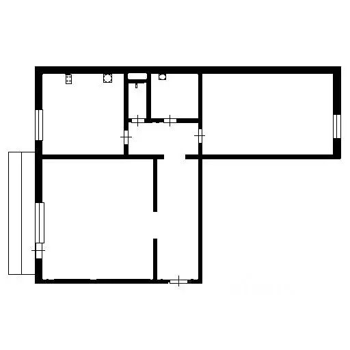
50 м2
Площадь
8 м2
Кухня
2
Комнаты
1
Этаж
9
Этажность

Дополнительная информация

Тип дома
панельный
Развернуть
Агент
+7 (987) 685-70-62
Начать чат с агентом

2-к кв. Ульяновская область, Димитровград ул. Осипенко, 9 (50.6 м)

Продается 2-комнатная квартира на 1 этаже по ул. Оспенко,9. Общая площадь-50,6 кв.м. Квартира не угловая, светлая, теплая, без ремонта. Установлено одно пластиковое окно, лоджия застеклена деревянными рамами. Санузел раздельный, установлены счетчики. Чистый подъезд, хорошие соседи, во дворе детская площадка. Рядом магазины, в шаговой доступности остановки, школа, детские сады. Звоните, покажем. ЕкатеринаГарантии покупателям:- проверка документов юристом по недвижимости;- юридическое сопровождение сделки;- отсутствие обременений;- помощь в одобрении ипотеки.Риэлторское агентство Жемчужина. Работаем с 1993 года.Профессиональная поддержка клиентов в сделках с недвижимостью.id-6Номер объекта: 1/553165/15387

Читать полностью

    Для того, чтобы купить двухкомнатную квартиру по адресу: Димитровград, ул. Осипенко, 9, позвоните по телефону +7 (987) 685-70-62. Торопитесь! Объявление №30090895473 о продаже двухкомнатной квартиры опубликовано 09 октября 2025.

    Позвонить Написать
    2 650 000 Р33 610 $ или 28 890
    Агент
    +7 (987) 685-70-62
    Начать чат с агентом
    Похожие предложения
    2-к кв. Ульяновская область, Димитровград просп. Автостроителей, 58 ... - Фото 1
    2-к кв. Ульяновская область, Димитровград просп. Автостроителей, 58 ... - Фото 2
    2-комнатная квартира, общая площадь 49м², жилая 30м², кухня 8м²

    Продается 2-комнатная квартира в районе порта по ул.Автостроителей .в кирпичном доме. Удобная планировка: комнаты расположены на разные стороны дома Квартира не угловая, требует ремонта,( проведена новая проводка и заменены окна на пластиковые)Во дворе...
    • 49 м²
    • 2-ком
    • 5/5 эт.
    • кирпичный
    2 730 000 Р
    Агент
    +7 (986) Показать номер
    Посмотреть контакты
    2-к кв. Ульяновская область, Димитровград ул. Терешковой, 5 (50.0 м) - Фото 1
    2-к кв. Ульяновская область, Димитровград ул. Терешковой, 5 (50.0 м) - Фото 2
    2-комнатная квартира, общая площадь 50м², кухня 6м²

    Продаётся уютная 2-комнатная квартира в центре Соцгорода Адрес: ул. Терешковой, 5 (5 этаж, кирпичный дом, скатная крыша) Площадь: 50 кв. м Преимущества:Светлая и просторная большие окна, пластиковые стеклопакетыУстановлены счетчики на воду...
    • 50 м²
    • 2-ком
    • 5/5 эт.
    • кирпичный
    2 780 000 Р
    Агент
    +7 (987) Показать номер
    Посмотреть контакты
    2-к кв. Ульяновская область, Димитровград просп. Ленина, 48А (48.0 м) - Фото 1
    2-к кв. Ульяновская область, Димитровград просп. Ленина, 48А (48.0 м) - Фото 2
    2-комнатная квартира, общая площадь 48м², жилая 30м², кухня 5м²

    Продается двухкомнатная квартира в центре соцгорода на 4 этаже 5-этажного дома. Общая площадь 48 кв.м. Комнаты смежные. Балкон застеклен.В квартире частично остаётся мебель. Идеальный вариант под новый ремонт (на свой вкус и цвет). Отличное местоположение:...
    • 48 м²
    • 2-ком
    • 4/5 эт.
    • блочный
    2 600 000 Р
    Агент
    +7 (917) Показать номер
    Посмотреть контакты
    3-к кв. Ульяновская область, Димитровград ул. Лермонтова, 6 (52.0 м) - Фото 1
    3-к кв. Ульяновская область, Димитровград ул. Лермонтова, 6 (52.0 м) - Фото 2
    3-комнатная квартира, общая площадь 52м², кухня 6м²

    Продается трехкомнатная квартира расположенную по ул.Лермонтова , д. 6.Общая площадь составляет 52 кв.м, кухня 6 кв.м.Квартира расположена на 1 этаже пятиэтажного монолитного дома, построенного в 1980 году.Это отличное предложение для большой семьи или...
    • 52 м²
    • 3-ком
    • 1/5 эт.
    • панельный
    2 650 000 Р
    Агент
    +7 (917) Показать номер
    Посмотреть контакты
    1-к кв. Ульяновская область, Димитровград ул. Курчатова, 20 (31.0 м) - Фото 1
    1-к кв. Ульяновская область, Димитровград ул. Курчатова, 20 (31.0 м) - Фото 2
    1-комнатная квартира, общая площадь 31м², кухня 6м²

    Предлагается в продажу уютная 1-комнатная квартира в районе соц города. В шаговой доступности-автобусные остановки, несколько магазинов, школа, детский сад. Во дворе есть вместительная автомобильная парковка и детская площадка. В квартире сделан косметический...
    • 31 м²
    • 1-ком
    • 2/5 эт.
    • блочный
    2 600 000 Р
    Агент
    +7 (987) Показать номер
    Посмотреть контакты

    Не нашли подходящего объявления?

    Оставьте заявку, и наши риэлторы подберут квартиру в районе Димитровграда

    (0)